Nice (06200) 3 PIÈCES TERRASSE VUE MER PANORAMIQUE PARKING CAVE

Réf : 19516 458 000 €

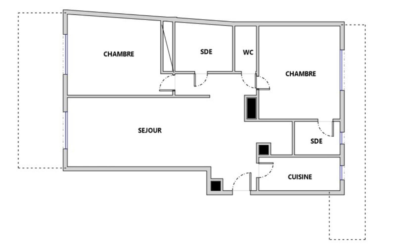
Dans l'une des plus belles résidences de standing de Nice Ouest (Arcadia 2), ce somptueux 3 pièces de 80 m² offre une vue mer panoramique à couper le souffle, du Cap Ferrat au Cap d'Antibes.

Ce bien rare bénéficie d'une exposition sud-ouest idéale, baigné de lumière toute la journée, et s'ouvre intégralement sur une superbe terrasse de 20 m² accessible depuis toutes les pièces.

Vous apprécierez son espace de vie spacieux et parfaitement agencé;

L'espace nuit propose une chambre, ainsi qu'une suite parentale type 'master' avec salle d'eau privative, WC et dressing aménagé.

Un deuxième salle de bains avec douche complète ce bien, ainsi que de nombreux rangements

Résidence, sécurisée avec gardien, offre des prestations de grande qualité :

piscine, club house, courts de tennis, terrain de pétanque, billard, salle de sport, bibliothèque, le tout dans un cadre verdoyant, calme et à proximité immédiate des commerces et transports.

Un parking et une cave compléte ce biens.

TRAD_SIROCCO_Caracteristique Valeurs
Code postal 06200
Surface habitable (m²) 79 m²
Surface loi Carrez (m²) 80 m²
Nombre de chambre(s) 2
Nombre de pièces 3
Etage 5
Ascenseur OUI
Vue Mer
TRAD_SIROCCO_Caracteristique Valeurs
Nb de salle de bains 2
Terrasse OUI
Exposition Sud
TRAD_SIROCCO_Caracteristique Valeurs
Copropriété OUI
Quote Part annuelle des charges 4 200 €
TRAD_SIROCCO_Caracteristique Valeurs
Prix de vente honoraires TTC inclus 458 000 €
Charges 350 €
Taxe foncière annuelle 1 450 €
Taxe d'habitation 1 300 €
DPE GES
DPE ANCIENNE VERSION

Nos outils

Imprimer
Intéressé(e) par Ce bien ?

* Champ obligatoire

contacter l'agence

Les informations recueillies sur ce formulaire sont enregistrées dans un fichier informatisé par La Boite Immo agissant comme Sous-traitant du traitement pour la gestion de la clientèle/prospects de l'Agence / du Réseau qui reste Responsable du Traitement de vos Données personnelles. La base légale du traitement repose sur l'intérêt légitime de l'Agence / du Réseau. Elles sont conservées jusqu'à demande de suppression et sont destinées à l'Agence / au Réseau. Conformément à la loi « informatique et libertés », vous disposez des droits d’accès, de rectification, d’effacement, d’opposition, de limitation et de portabilité de vos données. Vous pouvez retirer votre consentement à tout moment en contactant directement l’Agence / Le Réseau. Consultez le site https://cnil.fr/fr pour plus d’informations sur vos droits. Si vous estimez, après avoir contacté l'Agence / le Réseau, que vos droits « Informatique et Libertés » ne sont pas respectés, vous pouvez adresser une réclamation à la CNIL. Nous vous informons de l’existence de la liste d'opposition au démarchage téléphonique « Bloctel », sur laquelle vous pouvez vous inscrire ici : https://www.bloctel.gouv.fr Dans le cadre de la protection des Données personnelles, nous vous invitons à ne pas inscrire de Données sensibles dans le champ de saisie libre.
Ce site est protégé par reCAPTCHA, les Politiques de Confidentialité et les Conditions d'Utilisation de Google s'appliquent.

Ces biens peuvent aussi vous intéresser
Nouveauté
Nice (06000)

NICE – Quartier Fleurs / Rue de France – 3 pièces rénové avec...